Retour à la page d'accueil
Produits à comparer
0 articles
Meccado remise en acier Meccado remise en acier Meccado remise en acier Meccado remise en acier Meccado remise en acier Meccado remise en acier Meccado remise en acier

Textes descriptifs et téléchargements

Meccado remise en acier.

L'acier de récupération Meccado a tout ce dont une bonne récupération a besoin. Ce toit innovant se compose de divers éléments standards qui permettent d'innombrables combinaisons et agencements. Grâce au système de montage breveté, le toit Meccado est facile à installer, à ajuster par la suite ou à agrandir si nécessaire. Par sa convivialité et son système modulaire, le Meccado se distingue également des toitures traditionnelles du marché.

Détails du produit.

CARACTÉRISTIQUES
- connectable à l'infini et facilement extensible
- à assembler et régler soi-même
- évacuation des eaux pluviales intégrée
- la qualité à un prix compétitif

MODULAIRE
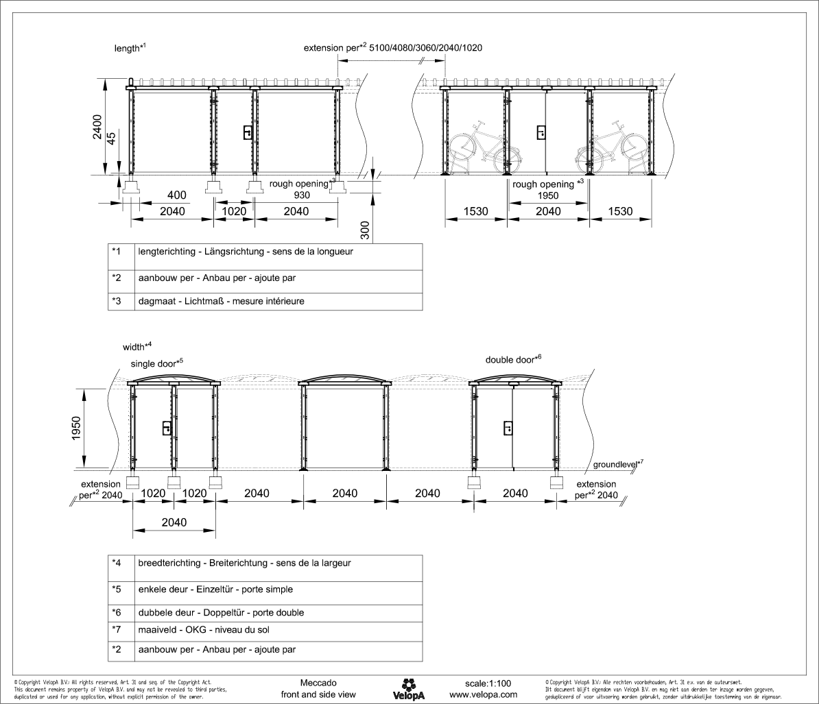
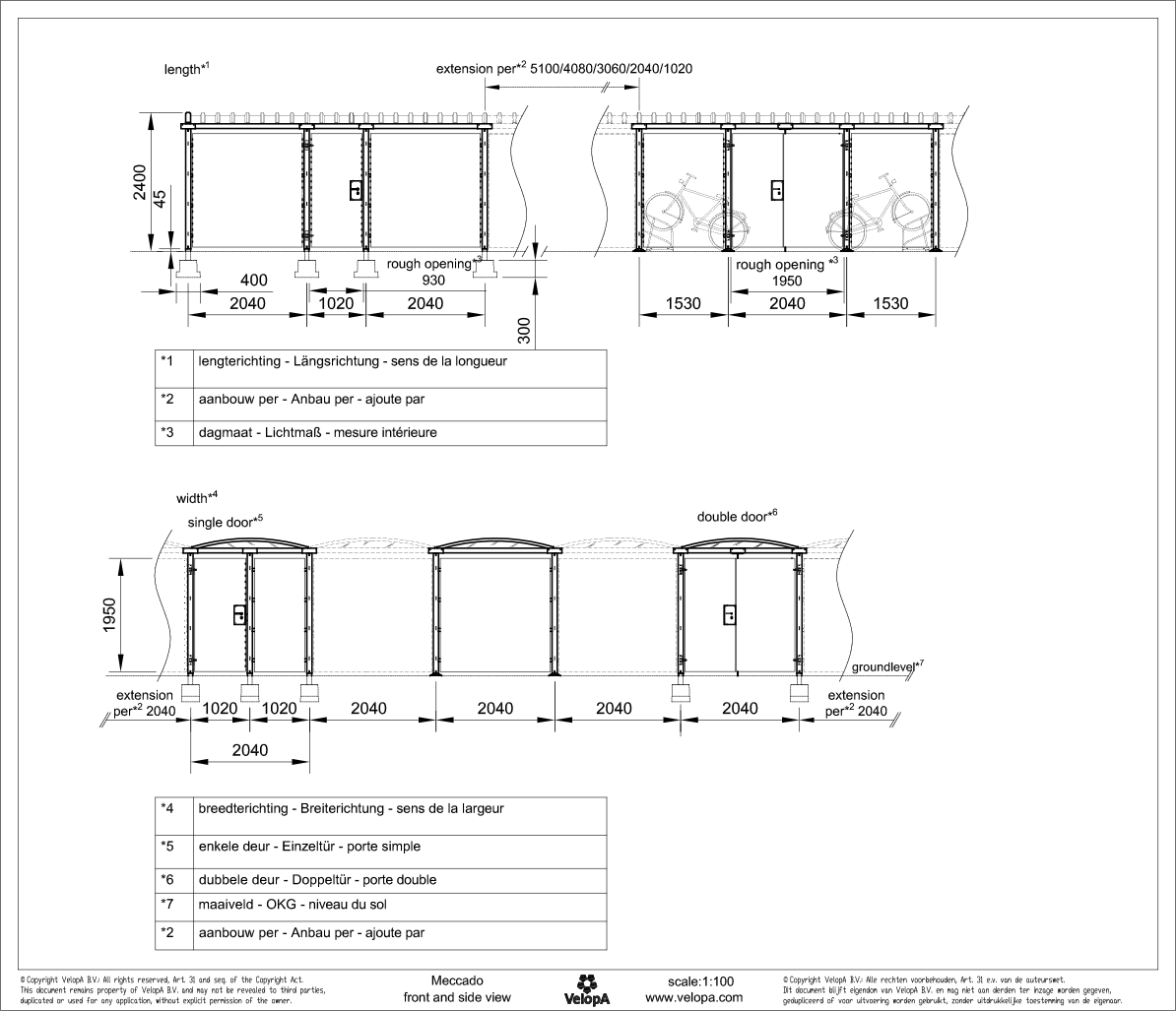
En raison de la diversité des éléments standards et des dimensions, le Meccado peut être assemblé selon vos propres souhaits, tant à l'intérieur qu'à l'extérieur. Grâce au système de crochet et de construction unique, toutes les pièces peuvent être combinées les unes avec les autres. La construction robuste permet une portée libre jusqu'à 5 mètres et peut être étendue dans toutes les directions sans limitation. Tous les composants, y compris les portes, peuvent être placés n'importe où. Toutes les pièces peuvent être fournies séparément pour permettre l'extension d'un Meccado existant.

ACCESSOIRES
- pieds réglables pour fondation prolongée au niveau du sol
- tube de fondation pour extension de fondation sous le niveau du sol
- relief
- système de contrôle d'accès

DES PORTES
Porte simple : ouverture gauche ou droite, équipée d'une serrure à cylindre
Double porte : équipée d'une serrure à cylindre, serrures à clé unique disponibles

RELIEF
Il est installé au centre d'un canal de drainage désigné par le client. Le câblage de l'éclairage est protégé par la gouttière. Renseignez-vous sur les options d'installation d'éclairage.

SYSTÈMES DE CONTRÔLE D'ACCÈS
Renseignez-vous sur les possibilités d'installation d'un système de contrôle d'accès.

DRAINAGE DES EAUX DE PLUIE
L'eau de pluie est évacuée juste au-dessus du niveau du sol via la gouttière et le montant creux de votre choix.

MATÉRIAUX ET MANUTENTION
Châssis et construction : acier, galvanisé et éventuellement laqué
Panneaux de toit : polyester de haute qualité
Murs et portes : grille en acier embouti, galvanisé, maille 100 x 33 mm, tôle d'acier perforée, galvanisée et éventuellement enduite

COLORER
Châssis et construction
: disponible dans presque toutes les couleurs RAL
Plaques de toit : opale et transparente
Murs et portes : tôle d'acier perforée : disponible dans presque toutes les couleurs RAL

CONTRAT DE SERVICE
Il est possible de conclure un contrat de service. VelopA se charge ensuite du nettoyage du Meccado deux fois par an (ou plus souvent si souhaité).

DES CONSEILS TOUJOURS SUR MESURE
VelopA offre une assistance complète pour choisir le bon toit. Afin de pouvoir vous proposer le toit le plus idéal, nous parcourons avec vous un certain nombre de questions. En fonction de vos réponses, notre équipe commerciale vous fera un conseil sur mesure. Cela peut souvent se faire par téléphone. Parfois, l'un de nos conseillers commerciaux vous rend visite pour examiner la situation, discuter de vos souhaits spécifiques et mesurer le toit. Vous recevrez ensuite une proposition sans engagement avec un dessin technique dans différentes perspectives. Vous êtes assuré d'une solution prête à l'emploi où l'apparence et la fonctionnalité vont de pair.

Tailles.

Meccado remise en acier Meccado remise en acier Meccado remise en acier Meccado remise en acier Meccado remise en acier

Meccado remise en acier.

Si vous êtes intéressé par ce produit, vous pouvez demander un devis ici.

Informations requises